Agenzia Immmobiliare San Vito dei Normanni
Italiano English
Cerca il tuo immobile
     

Tipologia

Genere

Prezzo

da    a 

Città

Zona

Vani (min.)

Mq. min

Rif. immobile

In dettaglio.

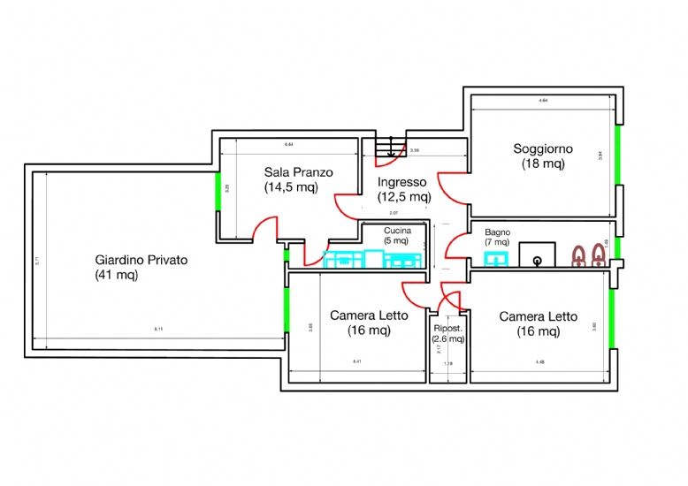
Piano terra con terrazza mq 40 in vendita a San Vito Dei Normanni (BR) in Pugliazona: periferia

San Vito Dei Normanni (BR)

2 1 0

115.000,00

  • Codice immobile 407
  • Stato del Rogito In vendita
  • Tipologia Appartamento
  • Piano Piano terra
  • Stato dell'immobile Buono
  • Superficie immobile 105 mq
  • Classe Energetica E
Richiedi Informazioni

Piano terra con terrazza mq 40

Ad angolo tra via Brindisi e via Vincet Van Gogh, con fermata autobus linea e centro commerciale a due passi, abitazione al piano terra facente parte di un contesto residenziale risalente agli anni 90' caratterizzata da una grande terrazza a livello di proprietà esclusiva. Così disimpegnato: ingresso con porta blindata, pensilina, soggiorno, zona pranzo con tinello semi-chiuso, uscita su terrazza pavimentata dai molteplici usi, corridoio, camera da letto matrimoniale, camera da letto per ragazzi/ospiti, ripostiglio, servizio con box doccia. Termoautonomo. Luminoso, gran potenziale.

Dettagli

  • Vani: 4
  • Camere da letto: 2
  • Cucina: 1 (Angolo cottura)
  • Stato immobile: Buono

Caratteristiche

  • O Autonomo
  • O Veranda
  • Costa: 0 Km
  • Ospedale: 0 Km
  • Ferrovia: 0 Km
  • Aeroporto: 0 Km
  • Centro: 0 Km
  • Scalo: 0 Km
  • Autostrada: 0 Km
  • Capoluogo: 0 Km

72019 - San Vito Dei Normanni (Brindisi)

(Gradi Decimali): N Lat. 40.6580476 - Lon. 17.7111283

(Formato DMS): NN 40° 39' 28,9714'' - E 17° 42' 40,0619''

Ubicazione:Periferia